
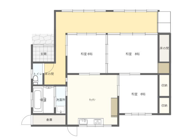
| 賃料 | 5.5万円 | 物件種別 | 戸建て | 間取 | 木造 3LDK | ||
|---|---|---|---|---|---|---|---|
| 共益費・管理費 | 敷金 | 10万 | 礼金 | 保証金 | |||
| 所在地 | 指宿市西方 |
|---|---|
| 交通 | 宮ヶ浜駅(指宿枕崎線)約720m |
| 築年月 | 1979年(築44年) | 新築/中古 | 中古 |
|---|---|---|---|
| 面積 | 98.30㎡ | 計測方式 | |
| バルコニー | 向き | 南 | |
| 建物階数 | 1階 | 部屋階数 | |
| 部屋/区画番号 | 総戸/区画数 | ||
| 建物構造 | 木造 | ||
| 間取内容 | 和3部屋 | ||
| 住宅保険料 | 要加入:家賃保証会社(アルファー)・火災保険 | ||
| 駐車場 | あり | 取引態様 | 賃貸 |
| 引渡/入居時期 | 即時 | 現況 | 空家 |
| 周辺環境 | いぶすき歯科医院 約210m なのはな歯科医院 約2140m まつもと一広歯科医院 約2210m いぶすき歯科医院 約210m 開南クリニック 約350m 指宿温泉病院 約2100m 南日本銀行 指宿支店 約4770m 鹿児島銀行 指宿支店 約4970m |
||
| 設備・条件 | 縁側、ガスコンロ対応、エアコン、洗濯機置き場有 、室内洗濯機置き場、バス・トイレ別、シャワー、シューズクローク、洗面所、収納スペース、庭、室内物干し | ||
| 自社物 | 状態 | ||